Verkocht onder voorbehoud:Strick van Linschotenstraat 71, 3461 EE Linschoten - Foto
Verkocht onder voorbehoud
+57

Strick van Linschotenstraat 71 3461 EE Linschoten € 469.500,- k.k.

  • Woonhuis
  • 5 kamers
  • 4 slaapkamers
  • 1 badkamer
  • Bouwjaar 1970
  • 162 m² perceeloppervlakte
  • 107 m² gebruiksoppervlakte
  • A Energielabel A

Beschrijving

Een goed onderhouden en in 2021 geheel gemoderniseerde tussenwoning waar u zo in kunt! De woning heeft energielabel A, 12 zonnepanelen, dakisolatie, spouwmuurisolatie, dubbel glas/HR++glas en vloerverwarming op de begane grond. De moderne badkamer en keuken en het feit dat de hele woning mooi gestuukt is maken het plaatje compleet. De woning heeft 4 slaapkamers.
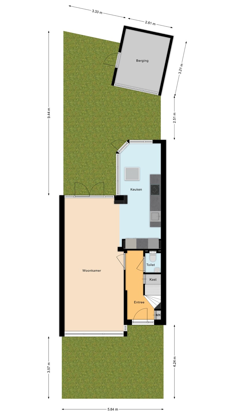
Via de entree van de woning komt u in de hal met meterkast, toiletruimte en vaste trap naar de 1e verdieping. Het moderne toilet is voorzien van een vrijdragend toilet en moderne wasbak en fontein. Via een mooie industriële glazen deur komt u in de lichte doorzon woonkamer met behaaglijke vloerverwarming. De openslaande deuren geven toegang tot de zonnige achtertuin. De luxe en moderne uitgebouwde keuken heeft mooie lichtinval door de lichtkoepel en de vele ramen en is voorzien van alle gemakken. U vindt hier een Quooker, inductiekookplaat, combioven, vaatwasser en een koel-vriescombinatie. Via een deur kunt u hier ook naar de tuin. De vaste trap in de hal brengt u naar de 1e verdieping met een overloop, 2 slaapkamers, een badkamer en een toiletruimte. De slaapkamer aan de voorzijde heeft een mooie inloopkast en een fijn dakterras. Aan de achterzijde is nog een ruime slaapkamer. De moderne badkamer heeft een ligbad, een heerlijke inloopdouche en een prachtig dubbel wastafelmeubel. De aparte toiletruimte heeft een vrijdragend toilet.
Via een vaste trap komt u op de 2e verdieping. Op de overloop is een opstelplaats voor de cv ketel Intergas en de m.v. box. Er is een (slaap)kamer met opstelplaats voor wasmachine en droger. De andere slaapkamer op deze verdieping is ruim en licht en voorzien van handige knieschotten voor bergruimte. Beide kamers hebben veel lichtinval door de dakkapel.
De voortuin is mooi bestraat en heeft leuke bloembakken met boompjes en beplanting. De op het zuidwesten gelegen achtertuin is voorzien van mooie grote tegels, sierbestrating en bakken met groenbeplanting. Er is veel terrasruimte en u kunt hier heerlijk genieten van de zon. Achterin de tuin staat een vrijstaande ruime stenen berging en u heeft ook een achterom.
Het is hier heerlijk wonen in deze rustige straat in een kindvriendelijke wijk.
Het pittoreske Linschoten heeft een fraaie kern. Winkels, basisscholen en sportclubs zijn op loop- en fietsafstand. De A12 is dichtbij en het NS station in Woerden op 10 minuten fietsafstand.
U bent van harte uitgenodigd om deze mooie woning te komen bekijken!

Indeling

Entree, hal, meterkast en vaste trap naar de 1e verdieping.
Een modern toilet (2021) met vrijdragend toilet en fontein.
Lichte doorzon woonkamer met vloerwarming en openslaande deuren naar de tuin.
Luxe uitgebouwde keuken (2021) voorzien van Quooker, inductiekookplaat, combioven, vaatwasser en koel-vriescombinatie.
Via de keuken komt u in de zonnige, op het zuidwesten gelegen, achtertuin met sierbestrating, groenpartijen en met een vrijstaande berging.

Eerste verdieping

De overloop en 2 ruime slaapkamers.
De slaapkamer aan de voorzijde heeft een inloopkast en een dakterras.
Een moderne badkamer (2021) met ligbad, inloopdouche en een dubbel wastafelmeubel.
Losse toiletruimte met vrijdragend toilet.
Vaste trap naar de 2e verdieping.

Tweede verdieping

Overloop met opstelplaats voor de cv ketel Intergas (2013) en m.v. box.
Ruime en lichte slaapkamer met knieschotten.
Kamer; opstelplaats voor wasmachine en droger.

Balkon

Dakterras van ca. 3m2.

Tuin

De voortuin is ca. 23 m2 groot en netjes bestraat met groen.
De zonnige achtertuin ligt op het zuidwesten heeft een berging en een achterom.
De berging heeft een vliering, verwarming en een wasmachineaansluiting.

Bijzonderheden

Centrale ligging met een oprit naar de A-12 en 10 minuten fietsen van station Woerden.
Gehele woning in 2021 gemoderniseerd.
Energielabel A.
Zonnige tuin op het zuidwesten.
Begane grond met vloerverwarming.
Moderne badkamer en keuken.
De gehele woning is gestuukt.
Een goed onderhouden woning met een modern uiterlijk.
De gehele woning heeft dubbel glas/ HR++ glas.
12 zonnepanelen.
Dakisolatie.
Spouwmuurisolatie.
Tado domotica/verwarmingssysteem.
Waterontharder.
Bouwjaar woning 1970
Kadastrale aanduiding: gemeente Linschoten ,sectie A, nr: 1224 en 1225
Oplevering in overleg.
Bezichtiging na afspraak met ons kantoor.

Kaart

Kenmerken

Overdracht

Referentienummer
05843
Vraagprijs
€ 469.500,- k.k.
Gas
€ 95,-
Water
€ 21,-
Inrichting
Niet gestoffeerd
Inrichting
Niet gemeubileerd
Status
Verkocht onder voorbehoud
Aanvaarding
In overleg
Aangeboden sinds
Dinsdag 3 maart 2026
Laatste wijziging
Vrijdag 27 maart 2026

Bouw

Type object
Woonhuis, eengezinswoning, tussenwoning
Soort bouw
Bestaande bouw
Bouwperiode
1970
Dakbedekking
Dakpannen
Type dak
Zadeldak
Isolatievormen
Dakisolatie
Dubbel glas
HR-glas
Muurisolatie
Spouwmuren

Oppervlaktes en inhoud

Perceeloppervlakte
162 m²
Woonoppervlakte
107,3 m²
Inhoud
356 m³
Oppervlakte externe bergruimte
8,4 m²
Oppervlakte gebouwgebonden buitenruimte
2,7 m²

Indeling

Aantal bouwlagen
3
Aantal kamers
5 (waarvan 4 slaapkamers)
Aantal badkamers
1 (en 2 aparte toiletten)

Locatie

Ligging
Aan rustige weg
Dichtbij openbaar vervoer
In woonwijk
Nabij school
Nabij snelweg

Tuin

Type
Voortuin
Oriëntering
Noord-oost
Staat
Goed onderhouden
Tuin 2 - Type
Achtertuin
Tuin 2 - Hoofdtuin
Ja
Tuin 2 - Oriëntering
Zuid-west
Tuin 2 - Heeft een achterom
Ja
Tuin 2 - Staat
Goed onderhouden

Energieverbruik

Energielabel
A

CV ketel

CV ketel
Intergas
Warmtebron
Gas
Bouwjaar
2013
Combiketel
Ja
Eigendom
Eigendom

Uitrusting

Warm water
CV-ketel
Verwarmingssysteem
Centrale verwarming
Vloerverwarming (gedeeltelijk)
Ventilatie methode
Mechanische ventilatie
Keukenvoorzieningen
Inbouwapparatuur
Badkamervoorzieningen
Dubbele wastafel
Inloopdouche
Ligbad
Heeft kabel-tv
Ja
Glasvezelaansluiting aanwezig
Ja
Tuin aanwezig
Ja
Telefoonaansluiting aanwezig
Ja
Beschikt over een internetverbinding
Ja
Heeft schuur/berging
Ja
Heeft een dakraam
Ja
Heeft zonnepanelen
Ja
Heeft ventilatie
Ja

Kadastrale gegevens

Kadastrale aanduiding
Linschoten B 1225
Perceeloppervlakte
38 m²
Omvang
Geheel perceel
Eigendomsituatie
Eigen grond
Kadastrale aanduiding
Linschoten A 1224
Perceeloppervlakte
124 m²
Omvang
Geheel perceel
Eigendomsituatie
Eigen grond

Brochure(s) en overige bijlagen

Strick van Linschotenstraat 71, 3461 EE LINSCHOTEN (1) Download

Gratis waardebepaling

Kies voor onze gratis waardebepaling. Wij geven na bezoek u een vrijblijvende opgave van uw woning.

Lees meer